品质留给时间来证明多年专注公路仪器研发定制生产
全国咨询热线:0317-7777829
您的位置: 建筑公路检测试验仪器 > 新闻中心 > 行业新闻

咨询热线

13303377029

混凝土磁力振动台如何操作

作者:河北航信仪器时间:2022-12-19 09:30:02 次浏览

信息摘要:

混凝土磁力振动台如何操作 使用及维护方法 (一)使用方法 1、将程序控制器面板上的预置拨码开关调节到要求的振动时间(单位:秒)。在振动过程中严禁调节预置拨码开关。 2、将装满混凝土的试模依次放置在电磁铁的相应位置,开启控制面板上的电磁铁开关,试模即牢固固定在振动台上。 3、按下控制器面板上的启动开关,振动台即启动,运转到预定振动时间,自动切换到制动,经7秒钟后自动断电。

混凝土磁力振动台如何操作  使用及维护方法 

(一)使用方法

     1、将程序控制器面板上的预置拨码开关调节到要求的振动时间(单位:秒)。在振动过程中严禁调节预置拨码开关。

     2、将装满混凝土的试模依次放置在电磁铁的相应位置,开启控制面板上的电磁铁开关,试模即牢固固定在振动台上。

     3、按下控制器面板上的启动开关,振动台即启动,运转到预定振动时间,自动切换到制动,经7秒钟后自动断电。

     4、关闭电磁铁开关,试模与台面电磁铁脱开,然后即可搬取试模。

(二)维护

     1、振动成型完毕之后,台面残留的混凝土应擦洗干净。

     2、振动电机和悬挂轴承,应定期加注润滑油。

     3、使用完毕,应切断电源。

     4、电磁铁不能通电时间过长,否则线圈容易烧毁。 
混凝土磁力振动台如何操作  安装 
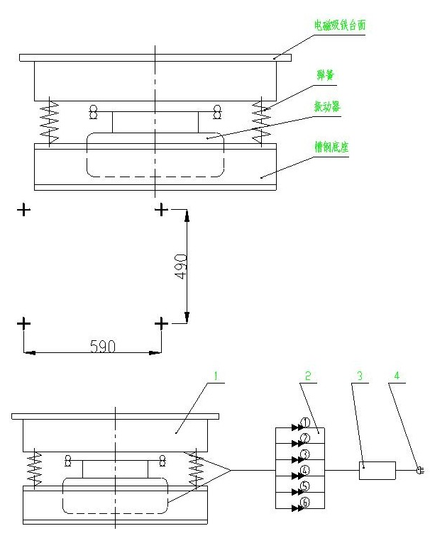
1、 将振动台安装在混凝土基础上,基础与槽钢底座之间垫大于5mm厚的橡胶带。地脚螺栓尺寸为M16×390mm,4只用户自备,螺栓透出地面60mm,地脚螺栓位置如“图2”。振动台安装后应保持台面水平。

2、将控制器放在距振动相近适当位置,将振动台上多线插头,插入控制器多线插座内。控制器上电源插入3~380V电源插座上。

3、为确保安全,振动台与控制器连接线,穿在硬塑料管或钢管内,并埋设牢固可靠,防止电缆损坏。

4、应有良好接地装置。

混凝土磁力振动台如何操作  电气接线图

 混凝土磁力振动台如何操作(图1)
 

1、振动台     2、多线插头座      3、程序控制器
4、四芯电源插头,①~⑦分别为多线插头座内部编号,①②接电磁铁,⑤⑥⑦接振动电机,④接地

返回列表 本文标签: